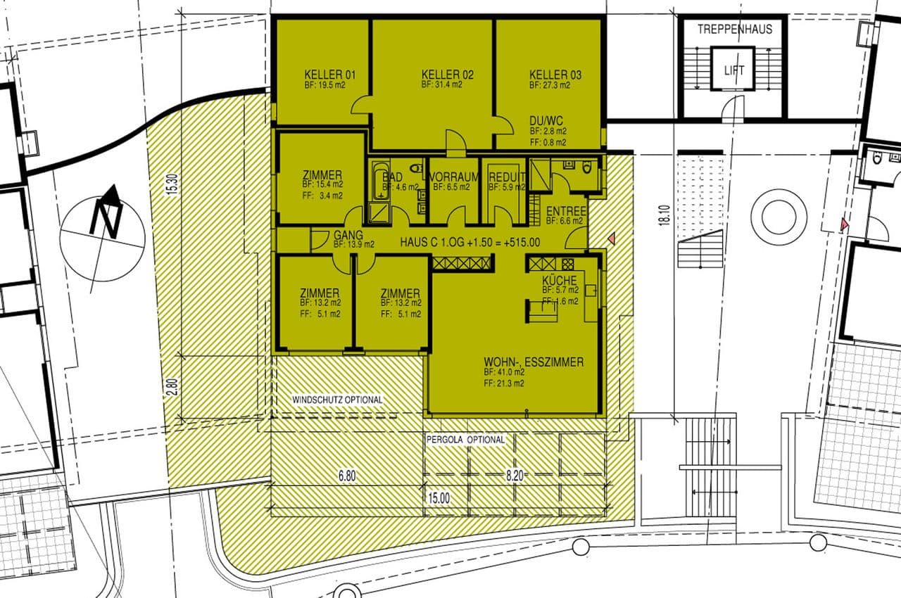
DIE GELEGENHEIT:Dieses einzigartige Miet-Angebot wird im Frühling 2026 für Sie verfügbar!Wiedervermietung des exklusiven Terrassenhauses C8 an privilegierter, sehr ruhiger Wohnlage mit optimaler Besonnung und einer traumhaften, unverbaubaren Fernsicht Richtung Lägern und Glarner Alpen!Highlights auf...