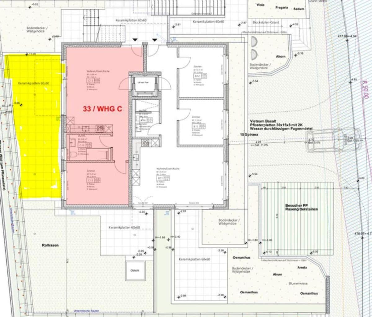
NEUBAU AN TOPLAGE MIT GROSSZÜGIGEM SITZPLATZ (40 M²) SOWIE EIGENER WASCHKÜCHE UND KELLER (17,4 M²). DIE WOHNUNG KANN AUF WUNSCH AUCH MÖBLIERT GEMIETET WERDEN.
Entdecken Sie Ihr neues Zuhause in unserer exklusiven Neubauüberbauung! Mit moderner Bauweise und zeitgemäßer Architektur setzen wir neue Maßstäbe im urbanen Wohnen. Unsere Wohnungen bieten höchsten Wohnkomfort und sind ideal für all jene, die das Besondere suchen. Die zentrale Lage ermöglicht Ihnen...