4.5-Zimmer-Wohnung in Luzern - CHF 2'210/Monat | HomeMatch
1 / 13
4.5-Zimmer-Wohnung in Luzern
CHF2'210/Monat99m²
Grüneggstr. 19, 6005 Luzern
Details
ObjekttypWohnung
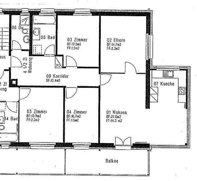
Wohnfläche99 m²
Zimmer4.5
Stockwerk2. OG
Baujahr1952
Kosten
NettomieteCHF 1'990
NebenkostenCHF 220
BruttomieteCHF 2'210
Beschreibung
Grosse 4.5 Zimmer-Wohnung mit Aussicht direkt über der Allmend!
Lage:Diese Wohnung überzeugt an zentraler und sogleich ruhiger Lage. Die Anbindungen an den öffentlichen Verkehr gestalten sich attraktiv. Der Autobahnanschluss ist in unmittelbarer Nähe. Die Einkaufsmöglichkeiten sowie ein breites Angebot an Freizeitaktivitäten überzeugen in der Vielfalt.Die Wohnun...