2.5-Zimmer-Wohnung in Münchenstein - CHF 1'568/Monat | HomeMatch
1 / 7
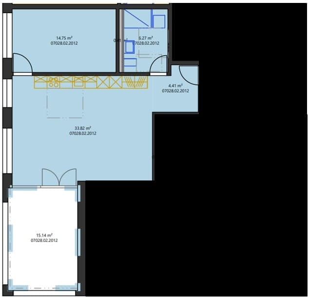
2.5-Zimmer-Wohnung in Münchenstein
CHF1'568/Monat59m²
Mittlere Gstadstr. 20, 4142 Münchenstein
Details
ObjekttypWohnung
Wohnfläche59 m²
Zimmer2.5
Stockwerk1. OG
Baujahr2020
Kosten
NettomieteCHF 1'428
NebenkostenCHF 140
BruttomieteCHF 1'568
Beschreibung
MIETEN OHNE KAUTION - Ein WohnTraum!
Wir vermieten nach Vereinbarung eine helle 2.5-Zimmer-Wohnung in Münchenstein. Die Wohnung verfügt über folgenden Ausbau: - Einbauküche mit Glaskeramik, Geschirrspüler und Backofen- Wohnräume mit Parkett und Fussbodenheizung- Bad mit Dusche- zusätzlicher Abstellraum - Eigener Waschturm - Lift- Balko...